全面・水廻りリフォーム施工事例
「ただいま!!」の声が聞きたくて。やさしさに包まれた暮らしが始まります。
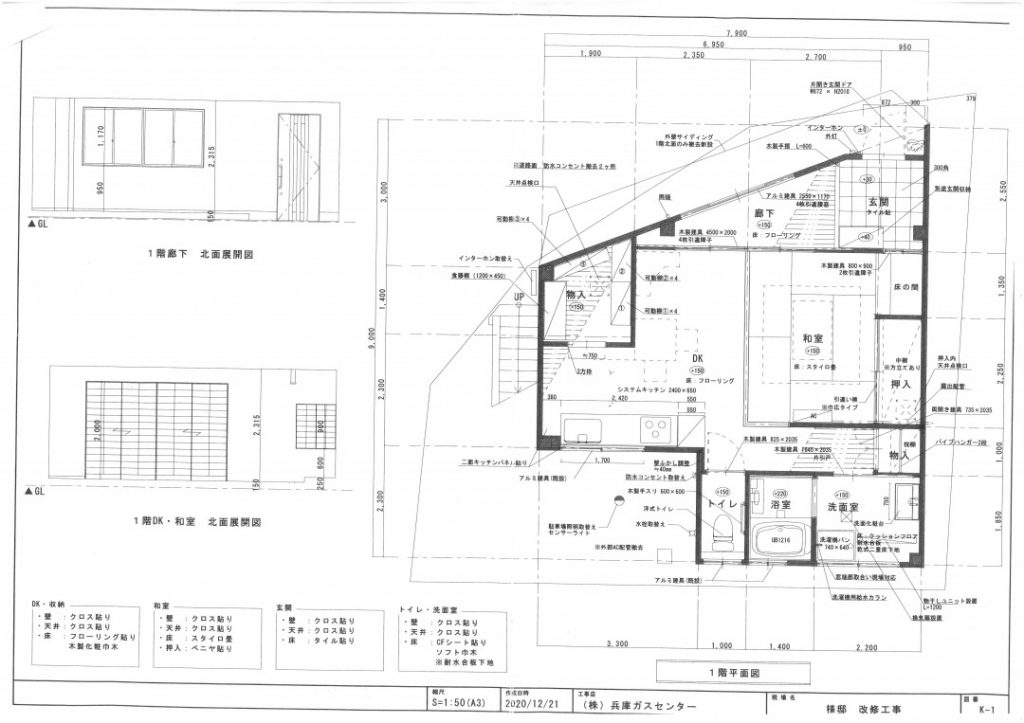
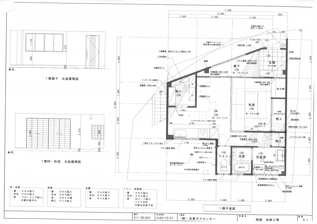
神戸市兵庫区 T様邸 二世帯住宅リフォーム(親世帯)
お客様からのご要望&リフォーム内容
1階が空き事務所、2階3階にお母さまがおひとりで暮らすには広すぎるお住まいでした。1階をお母さまの住居に、2階3階を子供世帯の住居にしたいというご要望でした。空き事務所のコンクリート土間から住宅用の床にするために、断熱材を十分に入れ保温性を高めました。「大きな窓から外を見渡したい。」というお母さまのリクエストで防犯性に配慮した窓から見える子どもたちの「ただいま!!」が待ち遠しい日常になりました。Before


























