全面・水廻りリフォーム施工事例
これからは神戸で…実家をリノベしました。
神戸市兵庫区 Y様邸 マンション
お客様からのご要望&リフォーム内容
ご主人の定年退職を機に、空き家になっている実家をリノベーションされました。何度もショールームに足を運び、ご主人の知識と奥様のアイデアが融合したナチュラルで優しい雰囲気に仕上がりました。
Before

After
| 主な商品 / 設備 / 素材 | LXIL システムキッチン リシェルSI 、タッチレス水栓ナビッシュ、IHヒーター、食器洗い乾燥機 LIXIL 室内ドア ラシッサDパレット タカラスタンダード 洗面化粧台 ファミーユ Panasonic 収納用建具、床材 TOTO ピュアレスト、ウォシュレット 「こどもエコすまい支援事業」対象工事 |
|---|---|
| 工期 | 2か月 |
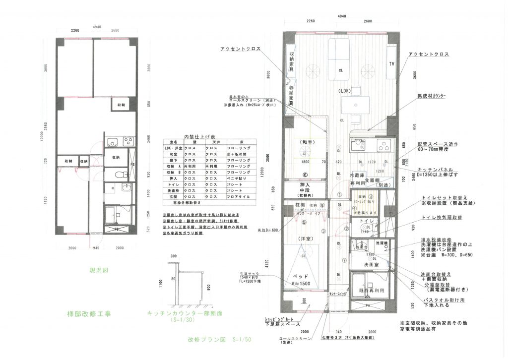
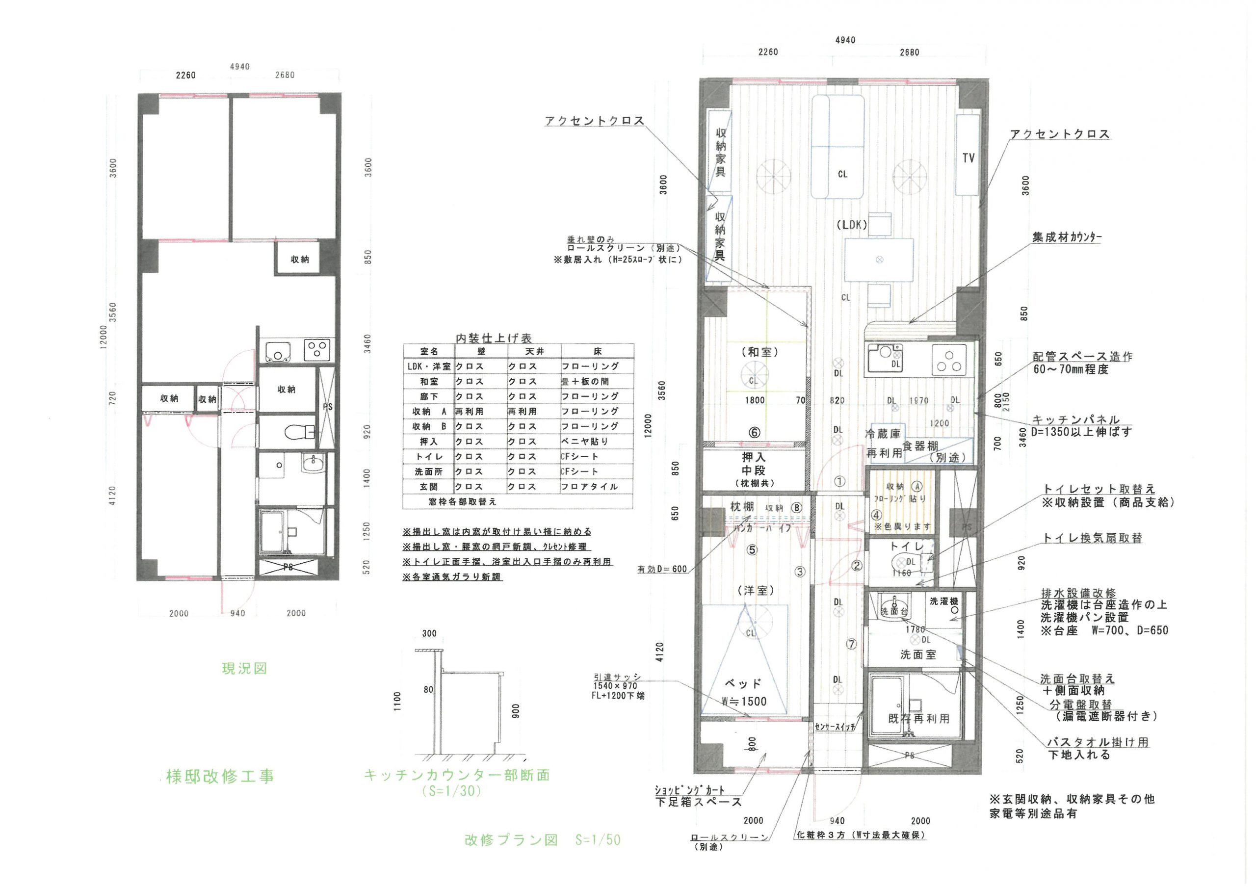
| プラン図 |





















