浴室リフォーム施工事例
一人暮らしの母に安心してお風呂に入ってほしくて。
神戸市灘区T様邸 築50年一戸建て
お客様からのご要望&リフォーム内容
遠方で暮らす娘さんは、一人暮らしで高齢のお母様が、自宅のお風呂に入らず近所の銭湯に通っているの心配でした。頻繁に帰省も難しく、弊社のHPをご覧になられてご依頼頂きました。
娘さんとの打ち合わせや進捗状況の報告などは、メールや電話を使って進めていきました。
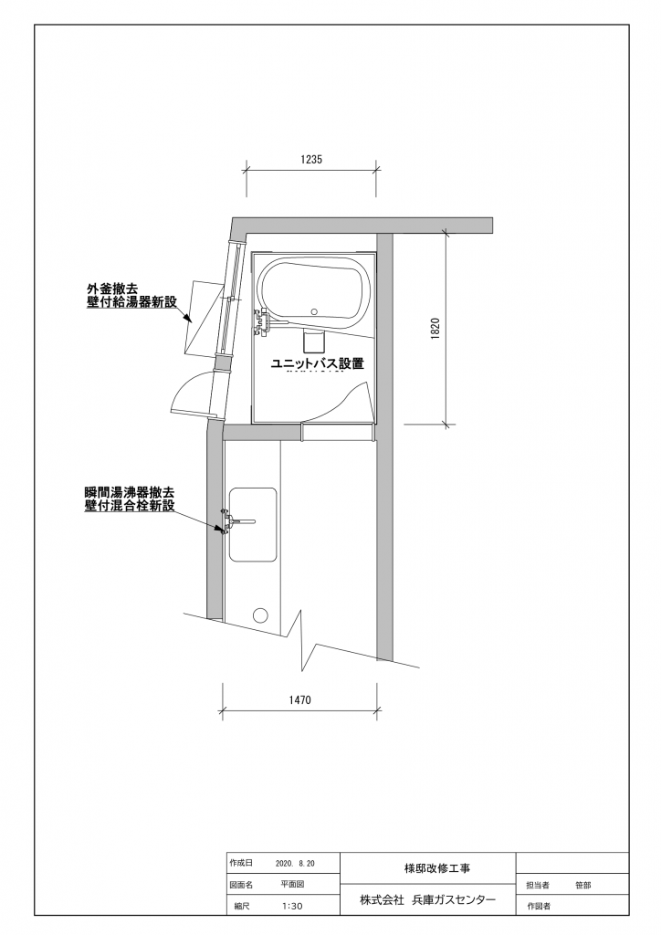
既存浴室の内部がひし形の為、ユニットバスの設置有効開口や、ドアの出入り口の納めに苦労しました。
施工後に訪問した際、「外出を気にせずに、いつでも好きな時間に暖かいお風呂に安心して入れます。」と喜びの声を頂いて、非常にやりがいのあるリフォームになりました。
| 主な商品 / 設備 / 素材 | TOTO リモデルバスルームWHシリーズ 1116サイズ ノーリツ 16号オートタイプ給湯器 |
|---|---|
| 工期 | 1週間 |
| プラン図 |


















