住まいのリフォームで大切なことは、リフォーム会社の担当者と
実際に工事をする職人さんとの深いつながりです

神戸の住宅リフォーム会社です。
内装・外装リフォームならお任せください。

tel:078-511-8404 tel:078-511-8404
お問い合わせ
求人情報
兵庫ガスセンターTOPTOP > 施工事例 > 全面・水廻りリフォーム > 娘夫婦と生まれてくる孫を新しい家で迎えてあげたいんです・・

全面・水廻りリフォーム施工事例

娘夫婦と生まれてくる孫を新しい家で迎えてあげたいんです・・

神戸市兵庫区 M様邸

お客様からのご要望&リフォーム内容

打ち合わせの際に『リフォームは気分一新のチャンスですよ・・・』と、弊社担当者がアドバイスをさせて頂いたところ、リフォーム着工前に、思い切った生活用品の処分を見事に実行されました。
結果的に、私たち工事を行う側も、大変スムーズに作業を進めることが出来ました。

リフォームに関するお施主様の主なご希望は・・・
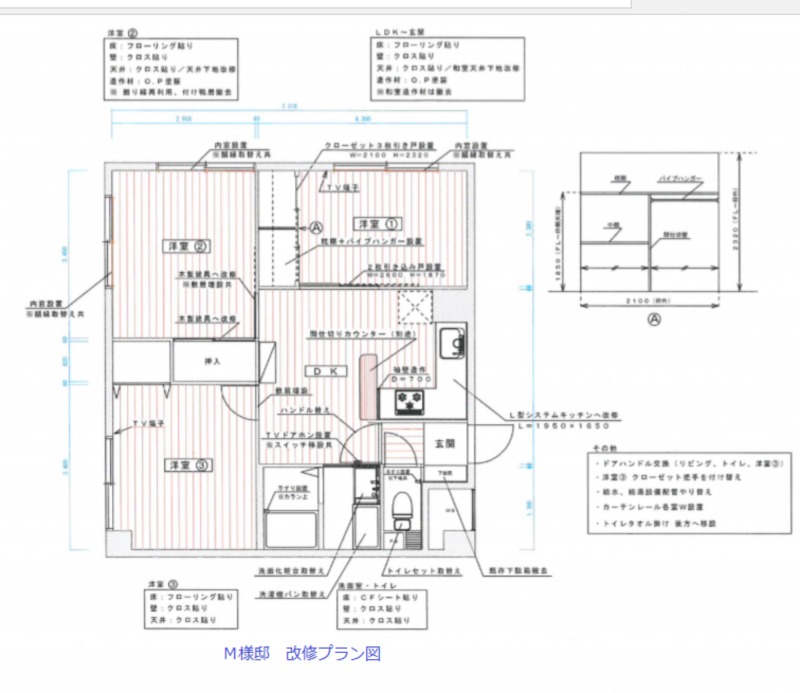
①窮屈で使いづらかった流し台をL型キッチンに。
②トイレを明るくかつシンプルに。
③和室+台所と独立している部屋のドアを変更し、開口部分を広くしてLDKとして使用したい。
④家中を白色とピンク色を基調にして明るい雰囲気に仕上げたい。
⑤和室2部屋をフローリングに、押入れを多目的クローゼットにしたい。
⑥窓サッシの老朽化が目立ち、内窓を設置して断熱性能を上げ、改修後の内装とマッチさせたい。

前述の通り、お施主様のご尽力とリフォーム期間中約1ヶ月間、ご近所に仮住まいをして頂いたことにより、工事が大変効率的に進み、ご希望された内容に極力近づいたリフォームをさせて頂くことが出来ました。

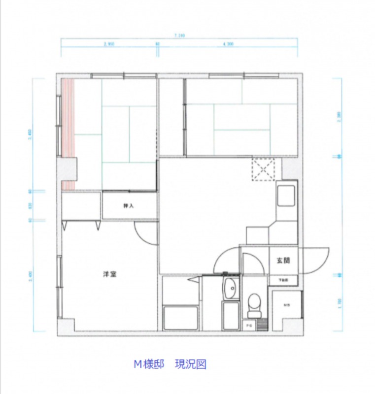
Before

After

主な商品 / 設備 / 素材 【キッチン】  TOTO  ミッテ
【トイレ】   TOTO  ピュアレストEX
【洗面化粧台】 TOTO  Vシリーズ
【内窓】    YKKAP プラマードU
【建具類】   Panasonic  ベリティスシリーズ
工期 30日
プラン図
アラフィフスタッフによるほぼ1分間で読めるコラム 会社案内・求人ムービー 代表メッセージ 代表のご挨拶

代表のご挨拶 私たちのモットーとする「正しい工事」についてお話しさせてください。

スタッフ・職人さん紹介

スタッフ・職人さん
紹介
兵庫ガスのスタッフをご紹介します。

取り扱い工事

取り扱い工事 兵庫ガスでお取り扱いしている工事をご紹介します。

施工事例

施工事例 お客様のご要望をしっかりとお聞きし新築以上の価値のあるご自宅に・・・。

リフォームの流れ

リフォームの
ながれ
一般的な工事の流れについてご説明します。

お客様インタビュー

お客様
インタビュー
本音をお話ししていただきありがとうございました!

NPO法人ひょうご安心リフォーム推進委員会
ページ上部へ