住まいのリフォームで大切なことは、リフォーム会社の担当者と
実際に工事をする職人さんとの深いつながりです

神戸の住宅リフォーム会社です。
内装・外装リフォームならお任せください。

tel:078-511-8404 tel:078-511-8404
お問い合わせ
求人情報
兵庫ガスセンターTOPTOP > 施工事例 > 全面・水廻りリフォーム > 家族みんなで新しい生活スタイルが始まります。

全面・水廻りリフォーム施工事例

家族みんなで新しい生活スタイルが始まります。

神戸市兵庫区 T様邸 二世帯住宅リフォーム(子世帯)

お客様からのご要望&リフォーム内容

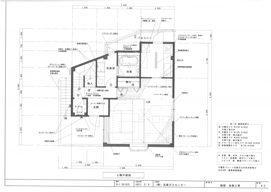
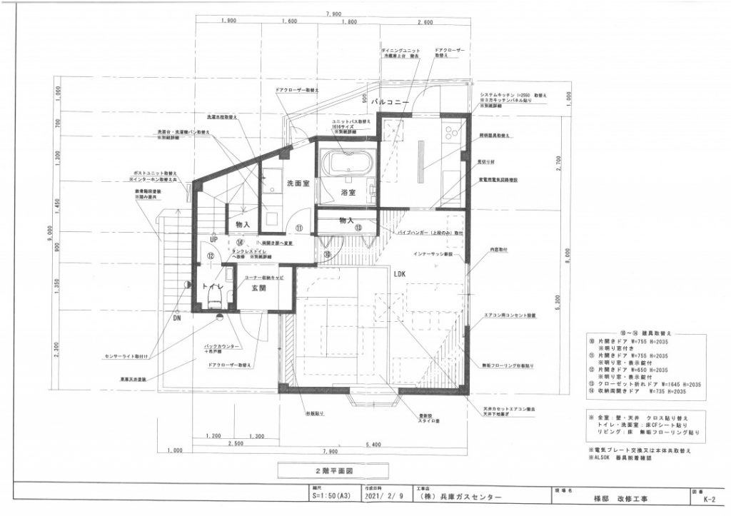
お互いのライフスタイルを考えて、水廻りや玄関など全てのスペースを分けた完全分離型にこだわりました。インテリアの素材感を統一することでシンプルでありながら奥行きを感じる空間に仕上がりました。また、3階はお子さまならではの想像力で室内に彩りを加えました。
主な商品 / 設備 / 素材 TOTOミッテ(システムキッチン)
TOTOサザナ(システムバスルーム)
TOTOネオレスト、ピュアレスQR(トイレ)
TOTOオクターブ(洗面化粧台)
無垢材杉床板15mm(フローリング)
YKKAPプラマードU(内窓)
工期 1ヶ月半
プラン図
アラフィフスタッフによるほぼ1分間で読めるコラム 会社案内・求人ムービー 代表メッセージ 代表のご挨拶

代表のご挨拶 私たちのモットーとする「正しい工事」についてお話しさせてください。

スタッフ・職人さん紹介

スタッフ・職人さん
紹介
兵庫ガスのスタッフをご紹介します。

取り扱い工事

取り扱い工事 兵庫ガスでお取り扱いしている工事をご紹介します。

施工事例

施工事例 お客様のご要望をしっかりとお聞きし新築以上の価値のあるご自宅に・・・。

リフォームの流れ

リフォームの
ながれ
一般的な工事の流れについてご説明します。

お客様インタビュー

お客様
インタビュー
本音をお話ししていただきありがとうございました!

NPO法人ひょうご安心リフォーム推進委員会
ページ上部へ